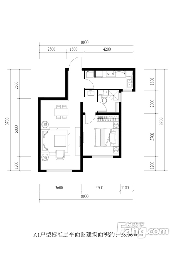
包头中冶水晶城68.96㎡
-
日期:2018-06-10
-
点击:689
各个空间户型方正,方便室内家具布置;户型不是南北通透,后期装修时可以考虑加装纱门改善通风;整体空间布局合理,能够保证动静分离和居室通风,方便使用;厨房空间不算开阔,可通过橱柜的合理布局改善空间;公摊高于15%且低于25%,符合住宅公摊正常范围。

