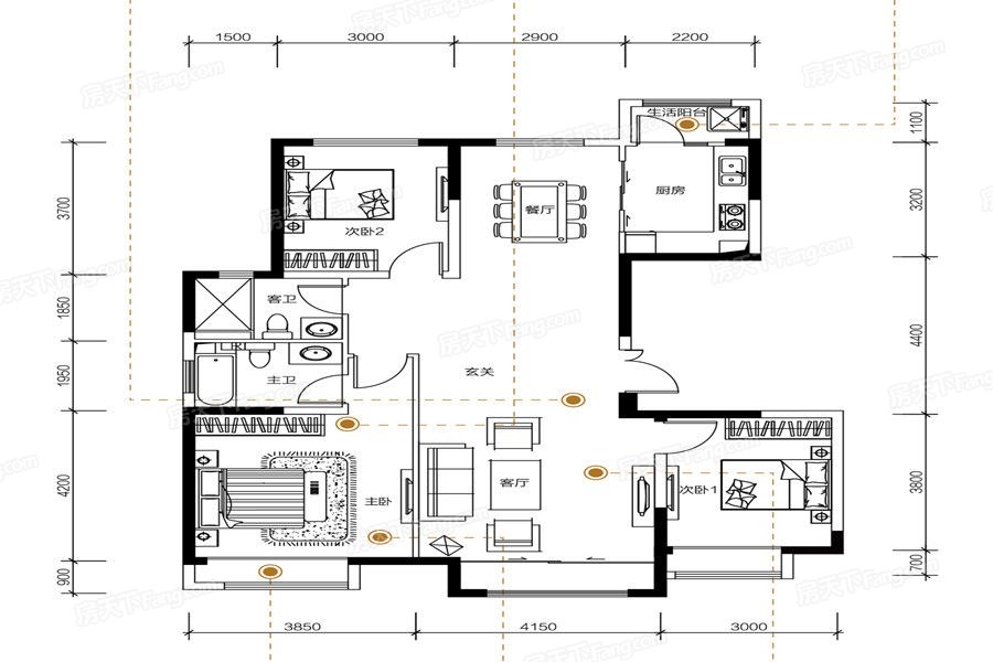
包头中冶华庭134㎡
-
日期:2018-06-10
-
点击:673
各个空间户型方正,后期空间利用率高;整个空间全明通透,采光良好,同时利于居住空间通风;卧室进卫生间需要穿过餐厅或客厅;客厅、卧室、卫生间和厨房等主要功能间的尺寸以及比例适中,有利于采光和通风,居住起来舒适、方便;

