您好,欢迎进入包头金品装饰城官网
企业微博   |  企业微信       网站地图
0472-2552236
服务热线:15049340693
首页 > 找我家 > 中建·御澜世家 > 包头中建·御澜世家140㎡

包头中建·御澜世家140㎡

  • 日期:2018-06-20
  • 点击:560
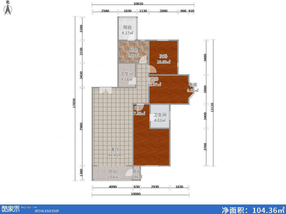
建筑面积: 140平方米
套内面积: 104.36平方米
楼盘信息: 内蒙古 包头 中建・御澜世家

提交信息,试试看!

已有99人提交

装修计算器今天已有 1513 位业主获取了装修预算

* 输入面积小于30㎡时,报价结果按30㎡计算

标准化装修报价,再也不怕被宰啦!

更多家居案例

扫码即获

扫码即获

更多家居案例